Kontakt os
Bestil fremvisning
Bestil salgsmateriale
Gadevangen 12B, Kongens Lyngby
Mulighed for at sætte eget præg
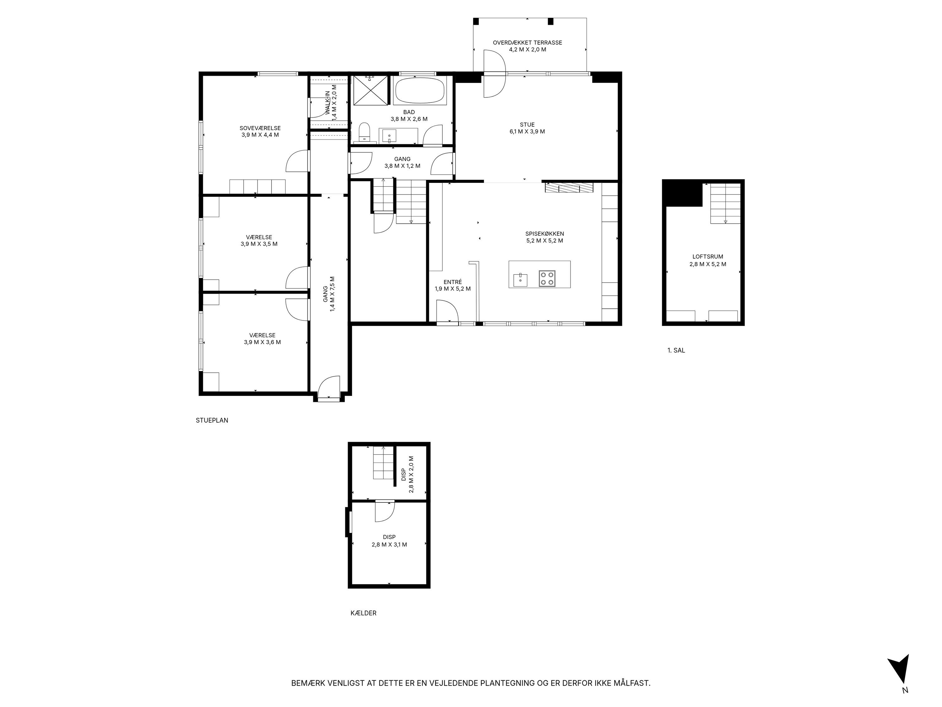
(Boligens m2 når den er færdig ligger på 175 m2) - sælger er åben for dialog om bud.
Velkommen til Gadevangen 12B – en charmerende villa beliggende i et af Kongens Lyngbys mest eftertragtede og familievenlige kvarterer. Her får du en beliggenhed, hvor hverdagen glider let: Tæt på gode skoler, daginstitutioner, indkøbsmuligheder og grønne omgivelser. Samtidig er der få minutter til både S-tog, busforbindelser og motorvej, hvilket gør det nemt at komme til og fra København – uanset om det er hverdag eller weekend. Kvarteret er roligt og trygt, og det er et område, hvor man hurtigt føler sig hjemme.
Huset har kun haft tre ejere gennem tiden, hvilket vidner om en bolig, man bliver glad for at bo i. Vores sælgere har gennemført en omfattende renovering, hvor der er lagt vægt på kvalitet, lys og funktionelle løsninger. Renoveringen er godt på vej, men ikke helt færdig – hvilket giver den nye ejer en oplagt mulighed for at sætte sit eget præg på de sidste detaljer. Det betyder, at du som køber får en bolig, hvor de store ting allerede er taget hånd om, men hvor du selv kan fuldende udtryk og stemning efter dine ønsker.
Sælgerne havde planlagt at blive boende i mange år frem, men på grund af en ændret familiesituation flytter de nu sammen med bedsteforældre. Derfor gives stafetten videre til nye ejere, der kan fortsætte arbejdet og skabe deres eget hjem her. Gadevangen 12B er en bolig med masser af potentiale, god energi og en beliggenhed, man sjældent får chancen for. Her får du mulighed for at skabe præcis det hjem, du drømmer om – i et område, hvor mange gerne vil bo, men få har mulighed for at købe.
-
Michelle Dahl Gray
Stifter og Indehaver, Ejendomsmægler MDE
Gadevangen 12B, Kongens Lyngby
Vi har passion for ejendomme
Velkommen til Dahl Gray, hvor vores passion for ejendomme går hånd i hånd med vores engagement i at skabe en unik og personlig oplevelse for vores kunder. Med et dedikeret team af eksperter og en stærk forankring i det danske ejendomsmarked, stræber vi efter at hæve standarden for service og professionalisme.